Проект каркасного дома «Берн»
Стоимость строительства
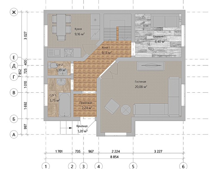
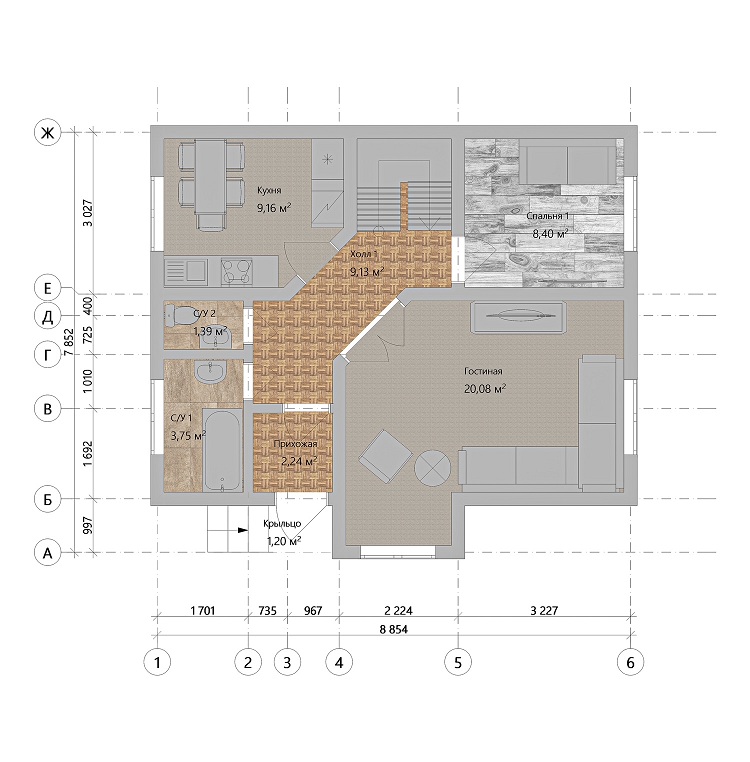
- Площадь: 105 м²
- Размер в плане: 7,8 x 8,8
- Этажность: 2 этажа
- Особенности:
Рассчитайте проект
- Пиломатериал
- Тёплый контур
- Под ключ
Подпишись на нас, знай больше!
Мы открыты!
ЛПК35 - аккредитованный подрядчик
в банках-партнерах
Проворачивайте таблицу вправо/влево
Состав комплектации |
Пиломатериал 0 ₽ |
Теплый контур 0 ₽ |
Под ключ 0 ₽ |
|---|---|---|---|
| Проектно-сметная документация | |||
| Состав проекта АР,КР |
|
|
|
| Домокомплект заводской готовности |
|
|
|
Подкладная доска 50х150(200) мм |
|
|
|
Каркас несущих стен Сухая доска 50х150(200) мм. |
|
|
|
Межэтажное перекрытие Сухая доска 50 (150)х150 (200) мм. |
|
|
|
Силовые элементы Клееный брус 150х150 (200) мм |
|
|
|
Гидроизоляция по фундаменту - Линокром |
|
|
|
| Фундамент | |||
Забивные ж/б сваи 150х150х3000 мм. |
|
||
| Кровля | |||
Стропильная система Доска 50х150 (200) мм |
|
|
|
Обрешетка / Контробрешетка Доска 25х100 мм./50х40 мм |
|
|
|
Гидро-ветрозащитная мембрана Изоспан |
|
|
|
Металлочерепица с доборными элементами толщина стали 0,5мм |
|
|
|
| ФАСАД | |||
Ветрозащитная плита Beltermo 20 мм. |
|
|
|
Обрешетка брусок сухой 30х40 мм. |
|
|
|
Фасад Имитация бруса 21х140 мм. Производственная окраска |
|
|
|
Наличники окон и дверей, углы дома, свесы кровли Окрашенная сухая строганная доска 20х95/145 |
|
|
|
Устройство ограждений Сухая строганная доска 20х95/40х40 |
|
|
|
Настил террас / балконов Террасная доска вельвет 28мм |
|
|
|
| ВНУТРЕННЯЯ ОТДЕЛКА | |||
Утепление полов, перекрытий, кровли Теплоизоляционные плиты Rockwool |
|
|
|
Пароизоляционная мембрана Изоспан |
|
|
|
Настил полов 1 и 2 этажа OSB 22 мм |
|
||
Межэтажная лестница строительная Деревянная |
|
||
Устройство вент.зазора стены, полы, потолки брусок 30х40 (50) мм. |
|
||
Отделка стен (каркасных), потолков Имитация бруса 21х140 мм. |
|
||
| Окна, двери | |||
Оконные блоки REHAU 70мм, с комплектующими |
|
||
Входная дверь Металлическая, утепленная с терморазрывом |
|
||
Межкомнатные двери Profil Doors |
|
Как сделать заказ
Оставьте нам заявку на сайте или по телефону
Доставка и выгрузка материалов в назначенный день
После подписания договора, вы оплачиваете 70% стоимости объекта
Производим полный цикл строительных и отделочных работ
Вы принимаете работу и подписываете акт сдачи-приемки
Даем официальную гарантию на все виды предоставленных услуг